menu | úvod | kontakt

Docent akademický architekt Bohumil Chalupníček

Projekty – výběr do aktuálního data | Úřad práce Praha východ | Fontána duha | Pamětní deska Brandýs nad Labem | Pamětní deska Telč | CHKZ - výstavní síň Warszawa | CHKZ - výstavní síň Moskva | Lasselsberger - výstavní síň Praha | Funerální architektura Karlík | Redakce Xantypa | Školské sestry řádu sv. Františta z Assisi | Boutique GALA Říčany | Plzeň Hálkova | Strašnice | Sklárna Světlá nad Sázavou | Petrotrans | Ingolstadt | Ministerstvo zahraničí ČR | Rodinné domy a bydlení | Deýlova konzervatoř pro zrakově postiženou mládež | Hotel Trend | Úřad práce - Kutná Hora | Nestátní stomatologické zařízení JaB medik v Praze | Hradišťko pod Medníkem | Prodejní komplex Moskva Reutovo | Církevní škola Noutonice | ZŠ Podolí | Mamina - obchod kojeckým zbožím | Provozovna recyklace papíru | Holandské květiny - Palladium | Mediterra - Malvazinky | Diplomatický sbor | Lasselsberger - Borovany | Ristorante Trincea - Úvaly

Boutique GALA Říčany
Projekty – výběr do aktuálního data

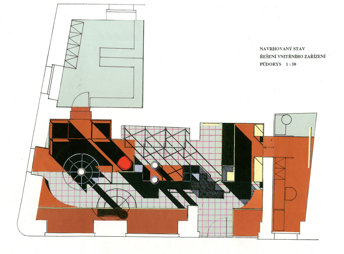
Na Říčanském hlavním náměstí, v prostorách bývalé cukrárny, byl realizován projekt výlučné obchodní jednotky, která si kladla ambice i na činnost výstavní, koncertní a činnost hostitelskou v oblasti tehdy módních čajoven. Interier salonu doplňovaly velkoplošné figurální kompozice módních kreseb Magdy Janečkové – Křesťanové a celý interier byl koncipován jako originál bez širšího užití seriových prvků. Úspěšně působil několik let se svým doprovodným programem, mnoha módními přehlídkami a autorskými výstavami s velkoryse pojatými vernisážemi, než jeho existenci ukončila konkurence stánkového prodeje. Jeho produkty byly tehdy příliš lákavým překvapením široké veřejnosti. Boutique GALA a jeho program se minul časem i místem, bohužel ve chvatu a objemu ostatní práce byla vyhotovena jen sporá dokumentace realizace, dnes již nedoplnitelná, stejně jako u řady dalších projektů.

Boutique GALA Říčany Boutique GALA Říčany Boutique GALA Říčany Boutique GALA Říčany Boutique GALA Říčany Boutique GALA Říčany Boutique GALA Říčany Boutique GALA Říčany Boutique GALA Říčany Boutique GALA Říčany Boutique GALA Říčany Boutique GALA Říčany Boutique GALA Říčany Boutique GALA Říčany

Magdu Křesťanovou, tehdy snad ještě Magdu Janečkovou, jsem si dovolil oslovit ke spolupráci po její habilitační docentské přednášce. Na ní předvedla pro mne neuvěřitelnou ferii figurálních kreseb. Pokud by byly uveřejněny v jakémkoliv módním časopise, určitě bych ho koupil a kresby nějakým způsobem zhodnotil. Osud napověděl, že nic takového činit nemusím, protože Magda přijala moji nabídku ke spolupráci na tomto módním salonu. Se vší úctou k Říčanům - v tehdejší době, kdy tato dnes svébytná prestižní lokalita má již svůj kredit, nemohla tento počin tehdy unést v oblasti poptávky. Dnes by tomu bylo určitě jinak. Autorka vytvořila dvě kresby. Soliterní figuru v krásné dynamické tříčtvrtce a figurální kompozici. Ženy na nich zobrazené postrádaly jakékoliv laciné atributy ženství – jako náročné účesy či jiný feminní dekor. Byly svým způsobem drsné, s definovaným tvarem lebky, s afektovanými výrazy v obličejích. Jejich oděv byl pochopitelně sporý a nadčasový zároveň. Tím módnímu salonu dávaly naprostou svobodu v jeho směřování. Autorka zvolila i i zcela novou techniku výtvarného projevu. Svoji kresbu dala k dispozici tehdy naprosto novým strojům, které byly schopny vytvářet velkoplošné xeroxové kopie. Její rukopis v mnohanásobném zvětšení získal novou emoci ve výrazu. Do těchto snad až technicistních výstupů se Magda nebála vstoupit s pastelem a jeho atakující barevností. V glosách našich rozhovorů někdy zapochybovala, jestli je takový postup s použitím repro techniky vůbec etický. K takové otázce nemohu být soudcem, ale jejími díly jsem se v tomto interieru velmi pyšnil. Jistě by si ani paní Magda takové otázky nekladla, kdyby věděla, kam se hranice této tak zvané etiky posunou v prvním desetiletí jednadvacátého století. Její figury v životní velikosti ve své době dominovaly tomuto salonu. Byly dokladem vrcholné úrovně figurální kresby na pražské Umprum, která dodnes i v daleko širších srovnáních než tehdy sbírá své ovace. bch

Boutique GALA Říčany Boutique GALA Říčany Boutique GALA Říčany Boutique GALA Říčany

Projekty – výběr do aktuálního data | Úřad práce Praha východ | Fontána duha | Pamětní deska Brandýs nad Labem | Pamětní deska Telč | CHKZ - výstavní síň Warszawa | CHKZ - výstavní síň Moskva | Lasselsberger - výstavní síň Praha | Funerální architektura Karlík | Redakce Xantypa | Školské sestry řádu sv. Františta z Assisi | Boutique GALA Říčany | Plzeň Hálkova | Strašnice | Sklárna Světlá nad Sázavou | Petrotrans | Ingolstadt | Ministerstvo zahraničí ČR | Rodinné domy a bydlení | Deýlova konzervatoř pro zrakově postiženou mládež | Hotel Trend | Úřad práce - Kutná Hora | Nestátní stomatologické zařízení JaB medik v Praze | Hradišťko pod Medníkem | Prodejní komplex Moskva Reutovo | Církevní škola Noutonice | ZŠ Podolí | Mamina - obchod kojeckým zbožím | Provozovna recyklace papíru | Holandské květiny - Palladium | Mediterra - Malvazinky | Diplomatický sbor | Lasselsberger - Borovany | Ristorante Trincea - Úvaly

Bohumil Chalupníček | Rozcestník/ Menu | Kontakt / Contact | Mapa stránek / Site Map | Designed by M.Soukupová

Artglyptika.cz - Eva Víšková Mrákotová | Kurzy dřevořezby - Běla Jeřábková | Jan Hísek | Vít Soukup