menu | úvod | kontakt

Docent akademický architekt Bohumil Chalupníček

Projekty – výběr do aktuálního data | Úřad práce Praha východ | Fontána duha | Pamětní deska Brandýs nad Labem | Pamětní deska Telč | CHKZ - výstavní síň Warszawa | CHKZ - výstavní síň Moskva | Lasselsberger - výstavní síň Praha | Funerální architektura Karlík | Redakce Xantypa | Školské sestry řádu sv. Františta z Assisi | Boutique GALA Říčany | Plzeň Hálkova | Strašnice | Sklárna Světlá nad Sázavou | Petrotrans | Ingolstadt | Ministerstvo zahraničí ČR | Rodinné domy a bydlení | Deýlova konzervatoř pro zrakově postiženou mládež | Hotel Trend | Úřad práce - Kutná Hora | Nestátní stomatologické zařízení JaB medik v Praze | Hradišťko pod Medníkem | Prodejní komplex Moskva Reutovo | Církevní škola Noutonice | ZŠ Podolí | Mamina - obchod kojeckým zbožím | Provozovna recyklace papíru | Holandské květiny - Palladium | Mediterra - Malvazinky | Diplomatický sbor | Lasselsberger - Borovany | Ristorante Trincea - Úvaly

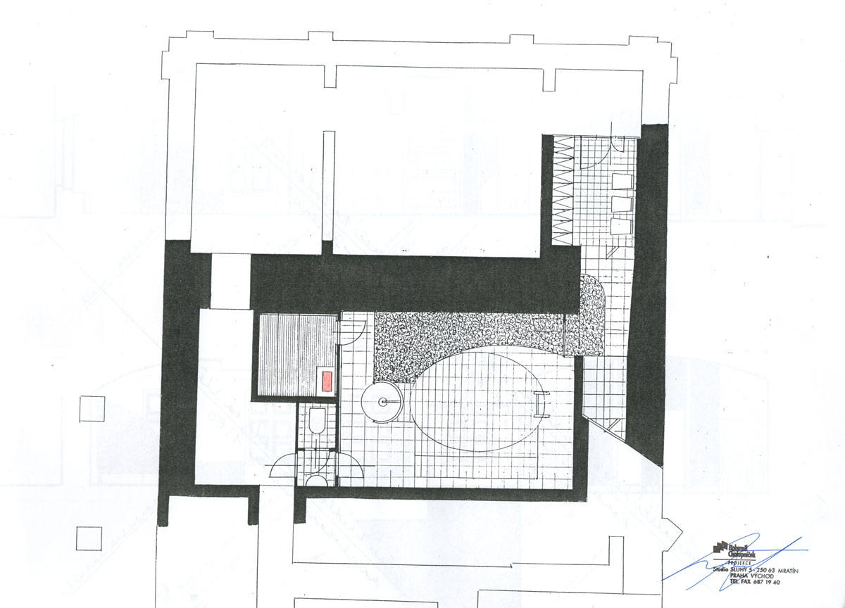
Lasselsberger - výstavní síň Praha
Další projekty

Po projektech pro Varšavu a Moskvu byl BCH osloven ze strany nového majitele firmy k vytvoření reprezentativního sídla Lasselsberger v Praze. Předmětem řešení byla zajímavá stavba v podobě vily či domu v Praze, v ulici Na Zátorce. Pokud by byla podrobena stavebně historickému průzkumu, jistě by vydala mnohá zajímavá svědectví o možném původu jádra bývalé hospodářské historické stavby v tehdejším extravillánu Prahy. Kancelářské prostory bývalé sovětské obchodní výsadky s impotencí svého výrazu byly v neuvěřitelném časovém presu proměňovány na reprezentativní sídlo s konferenční místností, halou, barem, jednacími salonky a vzorkovnou zboží. Ústní zadání zakázky proběhlo v červnu, termín byl stanoven na září. Nikoliv však vyhotovení projektu, ale realizace. Splnilo se včetně instalace keramické interierové fontány profesora Šeráka. Cílem byla návštěva nového majitele firmy na stavebním veletrhu v Praze. Několikamilionová investice měla svůj počátek ve velkorysém rautu, profesionálně zvládnutém najatou agenturou. S ohledem na tuto událost se od července do září intenzivně pracovalo ve všech dnech, včetně dne zatmění slunce. Provedená rekonstrukce a vystavené zboží produkce Lasselsberger vzbudila široký zájem. Vlastní vernisage zahájila Marie Retková a svým zpěvem provázela Petra Janů. Byla vynikající, stejně jako violoncellisté, rozesazení v trávníku kolem nově adaptované budovy. Nezdvořile je nikdo neposlouchal nebo spíše nevnímal. Ano, i to je obchodní svět.

Lasselsberger - výstavní síň Praha Lasselsberger - výstavní síň Praha Lasselsberger - výstavní síň Praha Lasselsberger - výstavní síň Praha Lasselsberger - výstavní síň Praha Lasselsberger - výstavní síň Praha Lasselsberger - výstavní síň Praha Lasselsberger - výstavní síň Praha Lasselsberger - výstavní síň Praha Lasselsberger - výstavní síň Praha Lasselsberger - výstavní síň Praha Lasselsberger - výstavní síň Praha Lasselsberger - výstavní síň Praha Lasselsberger - výstavní síň Praha Lasselsberger - výstavní síň Praha Lasselsberger - výstavní síň Praha Lasselsberger - výstavní síň Praha Lasselsberger - výstavní síň Praha Lasselsberger - výstavní síň Praha Lasselsberger - výstavní síň Praha Lasselsberger - výstavní síň Praha Lasselsberger - výstavní síň Praha Lasselsberger - výstavní síň Praha Lasselsberger - výstavní síň Praha Lasselsberger - výstavní síň Praha Lasselsberger - výstavní síň Praha Lasselsberger - výstavní síň Praha Lasselsberger - výstavní síň Praha

VÁCLAV ŠERÁK Prof. ak. soch.

životopis Václav Šerák

Oheň – Hlína – Led: Václav Šerák & žáci – UPM Praha 2014 – foto BCH

Projekty – výběr do aktuálního data | Úřad práce Praha východ | Fontána duha | Pamětní deska Brandýs nad Labem | Pamětní deska Telč | CHKZ - výstavní síň Warszawa | CHKZ - výstavní síň Moskva | Lasselsberger - výstavní síň Praha | Funerální architektura Karlík | Redakce Xantypa | Školské sestry řádu sv. Františta z Assisi | Boutique GALA Říčany | Plzeň Hálkova | Strašnice | Sklárna Světlá nad Sázavou | Petrotrans | Ingolstadt | Ministerstvo zahraničí ČR | Rodinné domy a bydlení | Deýlova konzervatoř pro zrakově postiženou mládež | Hotel Trend | Úřad práce - Kutná Hora | Nestátní stomatologické zařízení JaB medik v Praze | Hradišťko pod Medníkem | Prodejní komplex Moskva Reutovo | Církevní škola Noutonice | ZŠ Podolí | Mamina - obchod kojeckým zbožím | Provozovna recyklace papíru | Holandské květiny - Palladium | Mediterra - Malvazinky | Diplomatický sbor | Lasselsberger - Borovany | Ristorante Trincea - Úvaly

Bohumil Chalupníček | Rozcestník/ Menu | Kontakt / Contact | Mapa stránek / Site Map | Designed by M.Soukupová

Artglyptika.cz - Eva Víšková Mrákotová | Kurzy dřevořezby - Běla Jeřábková | Jan Hísek | Vít Soukup