menu | úvod | kontakt

Docent akademický architekt Bohumil Chalupníček

Projekty – výběr do aktuálního data | Úřad práce Praha východ | Fontána duha | Pamětní deska Brandýs nad Labem | Pamětní deska Telč | CHKZ - výstavní síň Warszawa | CHKZ - výstavní síň Moskva | Lasselsberger - výstavní síň Praha | Funerální architektura Karlík | Redakce Xantypa | Školské sestry řádu sv. Františta z Assisi | Boutique GALA Říčany | Plzeň Hálkova | Strašnice | Sklárna Světlá nad Sázavou | Petrotrans | Ingolstadt | Ministerstvo zahraničí ČR | Rodinné domy a bydlení | Deýlova konzervatoř pro zrakově postiženou mládež | Hotel Trend | Úřad práce - Kutná Hora | Nestátní stomatologické zařízení JaB medik v Praze | Hradišťko pod Medníkem | Prodejní komplex Moskva Reutovo | Církevní škola Noutonice | ZŠ Podolí | Mamina - obchod kojeckým zbožím | Provozovna recyklace papíru | Holandské květiny - Palladium | Mediterra - Malvazinky | Diplomatický sbor | Lasselsberger - Borovany | Ristorante Trincea - Úvaly

Rodinné domy a bydlení | Byt manželů E | Rodinný dům HHHH | Rodinný dům JUJU | Rodinný dům manželů P | Rodinný dům NT | Rodinný dům B | Rodinný dům Z | Rodinný dům LH | Rodinný dům ČČ | Půdní vestavba | Dům SL | Mladé bydlení | Rodinný dům HJ | Rodinný dům JH | Byt OD | Chodský statek | Rodinný dům CYD | Dům MBBM

Rodinné domy a bydlení - Rodinný dům ČČ
Projekty – výběr do aktuálního data

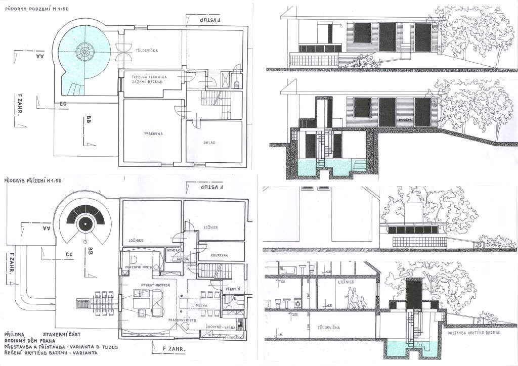
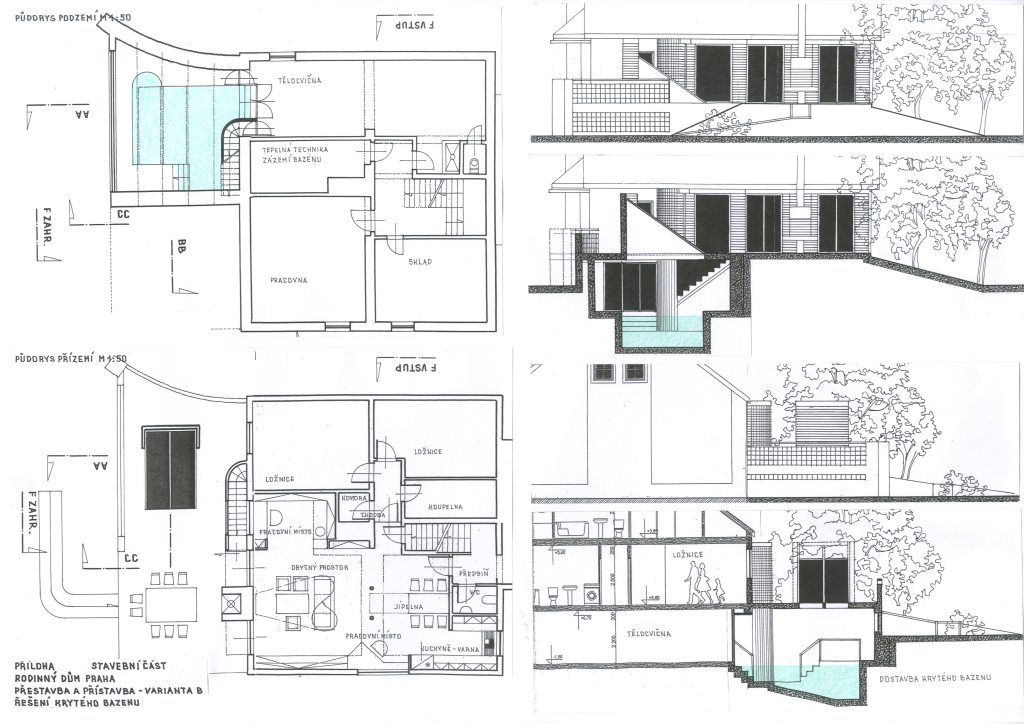
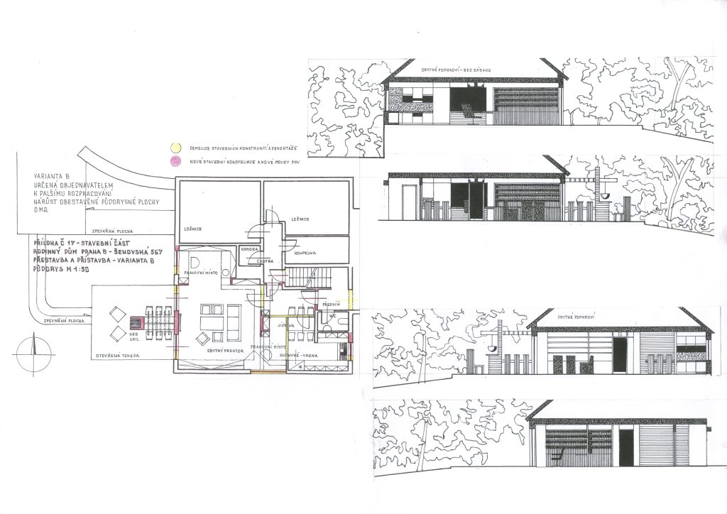
Rodinný dům ČČ je původně skupinou několika objektů, stavebně zcelených v jedinou dispozici se separovanými soběstačnými bytovými jednotkami generačního bydlení. BCH byl přizván k řešení prostor rodičů , kde se úvodně počítalo i s vybudováním malého krytého relaxačního bazenu v návaznosti na tělocvičnu v podzemí. Po výběru z alternativních studií byl zpracován projekt pro provedení stavby a návrh interieru, tvořený z individuální výroby mobiliáře a prvků antiquy z fondu stavebníků

Rodinné domy a bydlení Rodinné domy a bydlení Rodinné domy a bydlení Rodinné domy a bydlení Rodinné domy a bydlení Rodinné domy a bydlení Rodinné domy a bydlení Rodinné domy a bydlení Rodinné domy a bydlení Rodinné domy a bydlení Rodinné domy a bydlení Rodinné domy a bydlení Rodinné domy a bydlení Rodinné domy a bydlení Rodinné domy a bydlení Rodinné domy a bydlení Rodinné domy a bydlení Rodinné domy a bydlení Rodinné domy a bydlení Rodinné domy a bydlení Rodinné domy a bydlení Rodinné domy a bydlení Rodinné domy a bydlení Rodinné domy a bydlení Rodinné domy a bydlení Rodinné domy a bydlení Rodinné domy a bydlení Rodinné domy a bydlení Rodinné domy a bydlení Rodinné domy a bydlení Rodinné domy a bydlení Rodinné domy a bydlení Rodinné domy a bydlení Rodinné domy a bydlení Rodinné domy a bydlení Rodinné domy a bydlení Rodinné domy a bydlení Rodinné domy a bydlení Rodinné domy a bydlení Rodinné domy a bydlení Rodinné domy a bydlení Rodinné domy a bydlení

Rodinné domy a bydlení | Byt manželů E | Rodinný dům HHHH | Rodinný dům JUJU | Rodinný dům manželů P | Rodinný dům NT | Rodinný dům B | Rodinný dům Z | Rodinný dům LH | Rodinný dům ČČ | Půdní vestavba | Dům SL | Mladé bydlení | Rodinný dům HJ | Rodinný dům JH | Byt OD | Chodský statek | Rodinný dům CYD | Dům MBBM

Projekty – výběr do aktuálního data | Úřad práce Praha východ | Fontána duha | Pamětní deska Brandýs nad Labem | Pamětní deska Telč | CHKZ - výstavní síň Warszawa | CHKZ - výstavní síň Moskva | Lasselsberger - výstavní síň Praha | Funerální architektura Karlík | Redakce Xantypa | Školské sestry řádu sv. Františta z Assisi | Boutique GALA Říčany | Plzeň Hálkova | Strašnice | Sklárna Světlá nad Sázavou | Petrotrans | Ingolstadt | Ministerstvo zahraničí ČR | Rodinné domy a bydlení | Deýlova konzervatoř pro zrakově postiženou mládež | Hotel Trend | Úřad práce - Kutná Hora | Nestátní stomatologické zařízení JaB medik v Praze | Hradišťko pod Medníkem | Prodejní komplex Moskva Reutovo | Církevní škola Noutonice | ZŠ Podolí | Mamina - obchod kojeckým zbožím | Provozovna recyklace papíru | Holandské květiny - Palladium | Mediterra - Malvazinky | Diplomatický sbor | Lasselsberger - Borovany | Ristorante Trincea - Úvaly

Bohumil Chalupníček | Rozcestník/ Menu | Kontakt / Contact | Mapa stránek / Site Map | Designed by M.Soukupová

Artglyptika.cz - Eva Víšková Mrákotová | Kurzy dřevořezby - Běla Jeřábková | Jan Hísek | Vít Soukup